主播:阳仔 浩仔
当卡洛·斯卡帕以五十岁的年龄在法庭上被人指控,无证职业时,没人想到他会在五十年后成为所有建筑师学习的对象。
本期我们将解密卡洛·斯卡帕的逆行人生:
①无证大师:从未考取建筑师执照的他,如何成为众多建筑大师的精神导师?
②装饰教授:在威尼斯美院落榜的"差生",为何能在玻璃工坊的火焰中淬炼出独特的建筑哲学?
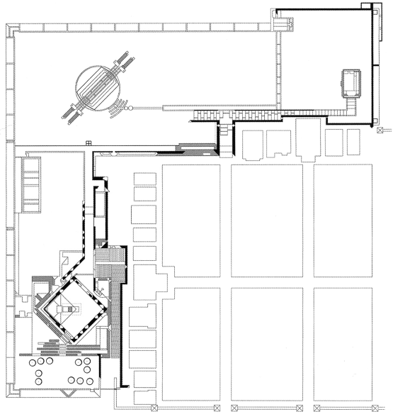
③时空外科医生:一栋缝合了七个世纪历史的古堡博物馆,如何成为建筑界的"教科书级修复范本"?
当整个建筑界在追逐摩天大楼时,这位"逆行"的大师却专注于墓园、商店和博物馆改造。他用混凝土写诗,让水流在建筑内部自由穿行,把楼梯变成操控身体的精密仪器。在圣马可广场的"眼形窗"前,他让每个访客都成为他空间戏剧的演员。
这是一部关于暗线大师的逆袭史诗,也是一场与时间的深情对话。斯卡帕的偏执、匠人的默契、材料的低语,在威尼斯的水光中交织成永恒的追问:真正的建筑资格,究竟是一纸证书,还是对空间诗意的虔诚?
点击收听这位"最会'装'的无证建筑师"的故事。
——
01:34 《没有证的建筑大师》
06:02 《别人胸口碎大石,我在古迹上玩耍》
12:02 《落榜美术生转身向工坊走去》
21:43《接手最混乱的古堡,我居然开始做史上最长装修?》
37:44《我如何用160平刀把儿地,骗过所有人的眼睛》
47:33《在威尼斯最窄商店设计出复杂空间》
58:43《别人说洪水来了,我赶紧打开大门》
1:09:33《我玩弄了生死》
1:17:31《专属于自己的人生终点》
1:23:33《遗产:看我如何“教坏”这帮孩子》
——



穆拉诺岛的精美玻璃器

斯卡帕手稿

古堡总平图


入口庭院







骑马人雕塑空间





一层画廊





二层画廊



二层廊桥处看骑马人雕塑


连接画廊、城墙、阿杰迪河城垛步道三方的楼梯

卡诺瓦雕塑博物馆

老画廊入口

新旧画廊视觉上的协调

一层平面图

立面图


设计图

用一段高差过渡

新画廊阶梯式体量一侧

阶梯式体量一侧

从尽端回望展厅




窗



精心设计的雕塑位置

精心设计的展架

精心设计的基座



三女神像身上的铅制黑点


白色展厅与白色雕像




奥利维蒂商店

入口,,斯卡帕的标志性图案


入口



一层



内部


巧妙的结构策略




设计过的楼梯

只有西侧廊桥才能通往眼形窗前



眼形窗和窗外景色


《阳光下的裸体》


奎里尼基金会的桥



新地面被抬高

墙体处理


水从铁栅门流入




走道成为桥



展厅









庭院

墙上的马赛克

白色石材作为端部收头





流水

斯卡帕的墓



布里昂家族墓园






通廊

左边连接拱顶墓室,右边连接冥想亭

水池

位于空间焦点上的拱顶墓室

挪开的礼拜堂,视线一览无余



礼拜堂




礼拜堂内部






家徽纹样,黑檀木材质

主墓草地台阶




墓园的生机盎然


墓园的设计
——
主要参考资料:
Richard Murphy:《Carlo Scarpa and the Castelvecchio》
Francesco Dal Co, Giuseppe Mazzariol:《Carlo Scarpa The Complete Works》
Sergio Los, Carlo Scarpa, Klaus Frahm:《Carlo Scarpa.》
帕翠西亚·皮奇尼尼:《超越物质》
门户网站:有方
技术顾问:秘塔、DeepSeek
——
片头曲:《致爱》